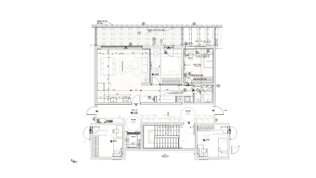
H APARTMENT
Luxury apartment on the first sea line. Typologies: ResidenceSize: 75 m2location: Bat Galim Beach, Haifa, IsraelStatus: completed. 2022